BAUHAUS
‌
Ostukorv
  • Kampaaniad
  • Kaubamajad
  • Kaubamärgid
  • Artiklid ja näpunäited
  • Kliendileht
  • Profimüük
  • Klienditugi
‌
‌
‌
‌
‌
‌
‌
‌
‌
‌
‌
  • 30 day returns UPS Logo

    30-päevane tagastusõigus

    Loe edasi
  • Click and Collect UPS Logo

    Võta peale kaubamajast

    Loe edasi
  • 5 Year Guarantee Logo

    5-aastane BAUHAUS garantii

    Loe edasi
  • Trasnportation UPS Logo

    Kiire ja usaldusväärne tarne

    Loe edasi

Telli uudiskiri ja võid võita 200 € BAUHAUS kinkekaardi!

Uudiskirja tellijana osaled automaatselt igakuises 200 € kinkekaardi loosimises ning saad esimesena teada parimatest pakkumistest!

Tellides uudiskirja, nõustud BAUHAUSi uudiskirjade saamisega e-posti teel. Uudiskirja tellimuse saad igal ajal tühistada kirjas oleva tühistamislingi kaudu. Lisainfot isikuandmete töötlemise kohta leiad siit.

BAUHAUS

Võta ühendust klienditoega

tel 602 9600

E-R: kell 9.00 - 18.00

L: kell 10.00 - 15.00

social inYoutube
‌
‌
‌
    • Kuidas osta?
    • Müügitingimused
    • Kauba kättesaamine
    • Garantii ja tagastamine
    • BAUHAUS garantii
    • Andmekaitse
    • Klienditugi
    • Profimüük
    • Tööriistade laenutus
    • Haagise laenutus
    • Puitmaterjali saagimine
    • Värvide toonimine
    • Kaupade kojuvedu
    • Kõik teenused
    • Ettevõttest
    • Tule meile tööle
    • Jätkusuutlik areng
    • BAUHAUS rahvusvaheliselt
    • Artiklid ja näpunäited
    • Kinkekaart
    • Kampaaniatingimused
    • Kliendileht
    • Telli uudiskiri

2026 BAUHAUS. Kõik õigused kaitstud

See sait on kaitstud reCAPTCHA-ga ning kehtivad Google'i Teenuse Tingimused ja Privaatsuspoliitika.
Vajuta siia, et lugeda rohkem makseviiside kohta
Seinapealse WC-poti loputussüsteem Grohe Rapid SL | BAUHAUS
  • Avaleht
  • Vannituba ja saun
  • WC potid ja prill-lauad
  • WC-potid
Image
Seinapealse WC-poti loputussüsteem Grohe Rapid SL 3-in-1
Image
GROHE
Kirjuta arvustus

Seinapealse WC-poti loputussüsteem Grohe Rapid SL 3-in-1

‌
‌
‌
30-päevane tagastusõigus
30-päevane tagastusõigus - loe lähemaltSamuti igas kaubamajas

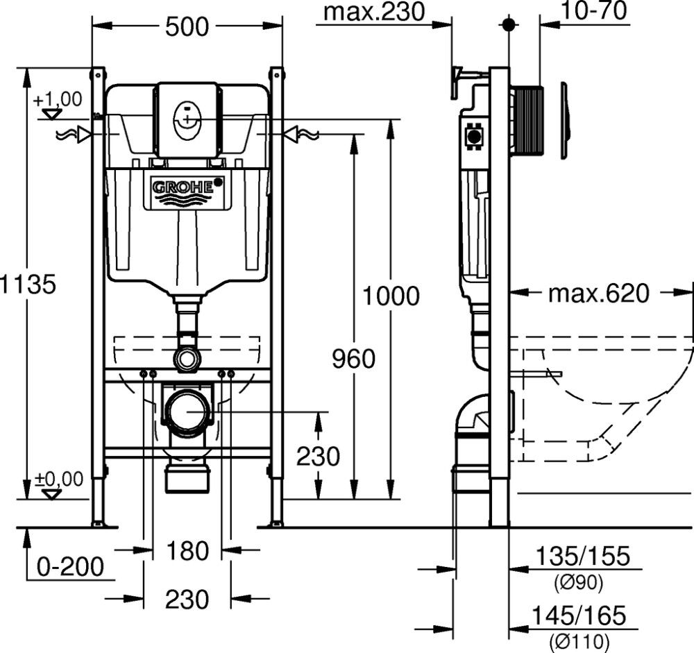
Seinapealse WC-poti raam on ühes tükis, mis muudab paigalduse lihtsaks ja kiireks.

Tehniline info

  • Kõrgus: 113,5 cm
  • Laius: 50 cm
  • Reguleeritav kõrgus: 20 cm
  • Kinnituste kaugus: 18/23 cm
  • Loputuskast: GD2, 6-9 l
  • Loputus: 3/6 l
  • Müratase: I
  • Kondentsvee vaba: jah
  • Kaal: 12,24 kg
  • Materjal: teras, plastik
KaubamärkGROHE
Tootekood1053783
Mõõdud 50 x 113.5 cm ( L x K )
EAN4005176863448
Korgus113.5 cm
TootenimetusSeinapealse WC-poti loputussüsteem Grohe Rapid SL 3-in-1
Netokaal (kg)12.140
Peamine värvValge
Toote tüüpSeinapealse WC-poti paigaldusraam
QuickFixJah
VärvusSinine
Kaal (kg)12.140000
Laius50 cm
‌
‌
‌
‌
‌
‌
‌
‌
‌
‌
‌
‌
‌
‌
‌
‌
‌
‌
‌
‌
‌
‌
‌
‌
‌
‌
‌
‌
‌
‌
‌
‌
‌
‌
‌
‌
‌
‌
‌
‌
‌
‌
‌
‌
‌
‌
‌
‌
‌
‌
‌
‌
‌
‌
‌
‌
‌
‌
‌
‌
‌
‌
‌
‌
‌
‌
‌
‌
‌
‌
‌
‌
‌
‌
‌
‌
‌
‌
‌
‌
‌
‌
‌
‌
‌
‌
‌
‌

Sarnased tooted

Seinapealne WC-pott Rio
Lõpumüük
Seinapealne WC-pott Rio
‌
‌
‌
Seinapealne WC komplekt Gustavsberg Triomont All-In-One Nordic³
Seinapealne WC komplekt Gustavsberg Triomont All-In-One Nordic³
‌
‌
‌
Seinapealne WC komplekt Grohe Solido 5 In 1 Bau Ceramic
Seinapealne WC komplekt Grohe Solido 5 In 1 Bau Ceramic
‌
‌
‌
Seinapealne WC-pott Kompas ja prill-laud
Seinapealne WC-pott Kompas ja prill-laud
‌
‌
‌
WC-pott Gustavsberg Nordic³ 3510- tahavooluga
WC-pott Gustavsberg Nordic³ 3510- tahavooluga
‌
‌
‌
Seinapealse WC-poti loputussüsteem Camargue
Kampaania
Seinapealse WC-poti loputussüsteem Camargue
‌
‌
‌
Seinapealne WC-pott Villeroy & Boch Targa Directflush valge
Seinapealne WC-pott Villeroy & Boch Targa Directflush valge
‌
‌
‌
WC-pott A-Collection allajooks
WC-pott A-Collection allajooks
‌
‌
‌
WC-pott A-Collection
WC-pott A-Collection
‌
‌
‌
WC-pott Cersanit Skand
Lõpumüük
WC-pott Cersanit Skand
‌
‌
‌
WC-pott Turavit Alize allajooksuga
WC-pott Turavit Alize allajooksuga
‌
‌
‌
WC-pott ECE Riga allajooksuga
WC-pott ECE Riga allajooksuga
‌
‌
‌
Seinapealse WC-poti loputussüsteem Vitra
Seinapealse WC-poti loputussüsteem Vitra
‌
‌
‌
Seinapealse WC-poti loputussüsteem Grohe Solido 2in1
Seinapealse WC-poti loputussüsteem Grohe Solido 2in1
‌
‌
‌
Seinapealne WC-pott ja prill-laud Rak Ceramics Feeling hall
Seinapealne WC-pott ja prill-laud Rak Ceramics Feeling hall
‌
‌
‌
Seinapealne WC-pott Camargue Skärgård Ivösjön
Lõpumüük
Seinapealne WC-pott Camargue Skärgård Ivösjön
‌
‌
‌
Seinapealne WC komplekt Grohe Solido 5 In 1 Euro Ceramic
Seinapealne WC komplekt Grohe Solido 5 In 1 Euro Ceramic
‌
‌
‌
Seinapealne WC-pott ja prill-laud Rak Ceramics Feeling must
Seinapealne WC-pott ja prill-laud Rak Ceramics Feeling must
‌
‌
‌
Seinapealne WC-pott ja prill-laud Rak Ceramics Feeling valge
Seinapealne WC-pott ja prill-laud Rak Ceramics Feeling valge
‌
‌
‌
Seinapealne WC-pott ja prill-laud Rak Ceramics Feeling cappuccino
Seinapealne WC-pott ja prill-laud Rak Ceramics Feeling cappuccino
‌
‌
‌